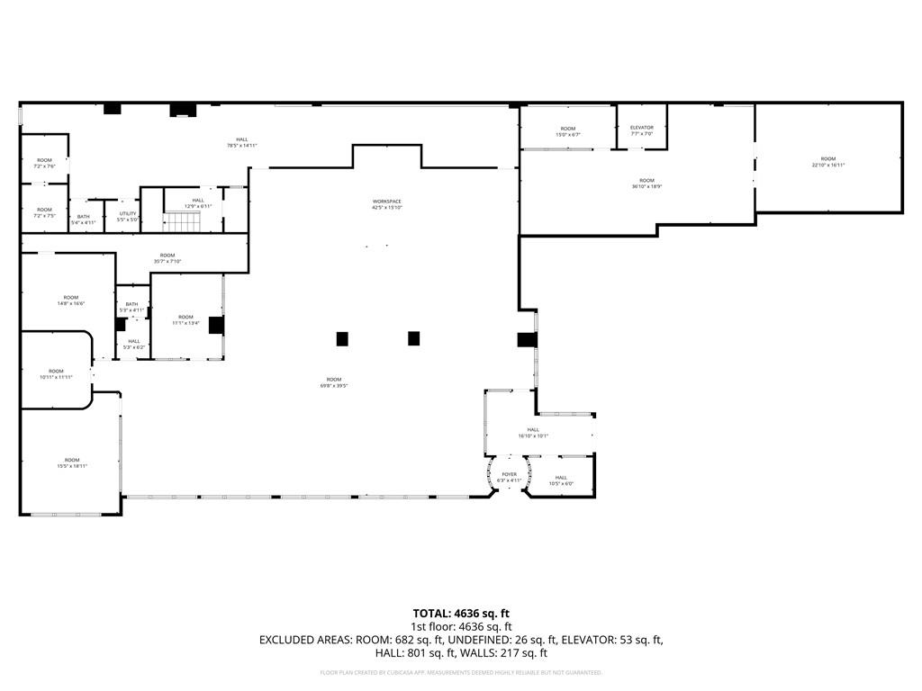
This 6,107 SF flagship main level space at Blue Ridge Tower offers a rare, high-security "plug-and-play" opportunity at the intersection of I-70 and US-40 HWY. Originally designed as a premium bank branch, the layout features a reinforced secure vault, dedicated teller stations, and a private interior elevator connecting its two levels. The fortified infrastructure makes it an ideal fit for high-value retail or professional services such as jewelry, high-end electronics, or specialty pharmacy, which require significant on-site security and specialized storage. 130,000+ daily impressions and prominent monument signage, within a newly revitalized building (2024 upgrades) featuring modern LED lighting and professional common areas. Tenants benefit from a full-service lease that handles HVAC, janitorial, and Wi-Fi. With an abundant 4.5/1,000 parking ratio, 24/7 on-site security, and walking-distance access to Walmart and Starbucks, this space provides the ultimate blend of regional visibility and mission-critical security.
Copyright © 2026 ELITE Realty.