12718 Crystal Avenue, Grandview, MO 64030

     
  • 4Beds
  •   
  • 3 Baths
  •  
  • 0½ Baths
  •  
  • 3,072Sq Ft
Mortgage Calculator

$394,999
 est. $1,683/mo

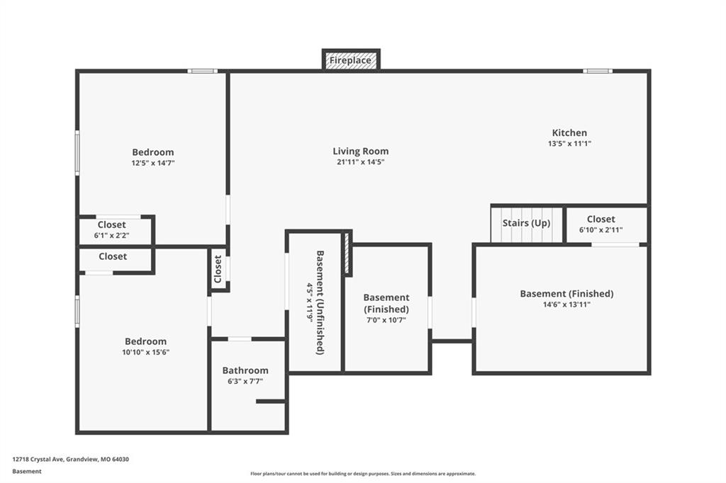
Welcome home to this beautifully restored and thoughtfully updated ranch, lovingly improved over the past 15 years. Every project has been completed with care, and it shows throughout this move-in ready home. Recent updates include a brand new concrete driveway, newer exterior paint, newer roof, solid hardwood oak flooring, renovated kitchen, designer tile, updated bathrooms, and more. One of the standout features is the inviting four seasons room just off the back of the home, complete with walls of windows and its own mini split system for year-round comfort. The stunning stone fireplace adds warmth and character to the main living space. The main floor offers three bedrooms, two full bathrooms, a spacious living room, dining area, laundry, and generous closet space. Downstairs, the finished basement provides incredible flexibility with a full second kitchen, an additional living area, one true bedroom, two non-conforming bedrooms, an office, and another full bathroom. Basement walls have also been reinforced for added peace of mind. Outside, enjoy a fenced backyard with mature trees, a dog run, playset, and a location on a wonderful family-friendly street.

Directions
Crystal Ave
Subdivision
Other
City
Grandview
County
Jackson
Property Type
Residential / Single Family Residence
Listing Updated
Apr 14, 2026 at 5:04pm
MLS Number
2610314
Property Tax
$2,400
Home Owners Association
No
Disclaimer
The information displayed on this page is confidential, proprietary, and copyrighted information of Heartland Multiple Listing Service, Inc. (“Heartland MLS”). Copyright 2026, Heartland Multiple Listing Service, Inc. Heartland MLS, Elite Realty and Agent Jo do not make any warranty or representation concerning the timeliness or accuracy of the information displayed herein. In consideration for the receipt of the information on this page, the recipient agrees to use the information solely for the private non-commercial purpose of identifying a property in which the recipient has a good faith interest in acquiring.
The data relating to real estate displayed on this website comes in part from the Heartland Multiple Listing Service database compilation. The properties displayed on this website may not be all of the properties in the Heartland MLS database compilation, or all of the properties listed with other brokers participating in the Heartland MLS IDX program. Detailed information about the properties displayed on this website includes the name of the listing company.
Information is deemed reliable but is not guaranteed.

Copyright © 2026 ELITE Realty.