00000 246th Lot 3 Street, Tonganoxie, KS 66086

Mortgage Calculator

$172,400
 est. $663/mo

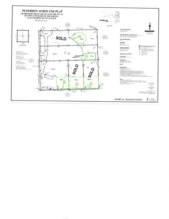
This is one of 5 parcels that have been offered for anyone seeking to build and live outside of Tonganoxie (approx. 5 miles) on Honey Creek Rd. and 246th Str...Enjoy the convenience of nearby city amenities while living a country life style. Great views and solitude are what come when buying this property. A building site is available on this property and a part of this property is in a flood zone. For more information call the listing agent Mike Shumway 785-423-2843 for more information.

Directions
From 24/40 and Hwy 16 in Tonganoxie go west on 16 to Sandusky, continue west on Sandusky then south as the road turns into 246th Str., continue on 246th Str. to Honey Creek road. Property sits on the corner of Honey Creek and 246th Str.
Subdivision
Other
City
Tonganoxie
County
Other
Property Type
Farm / Unimproved Land
Listing Updated
Mar 06, 2026 at 3:03pm
MLS Number
2605503
Property Tax
$182
Zoning
$AG
Home Owners Association
No
Disclaimer
The information displayed on this page is confidential, proprietary, and copyrighted information of Heartland Multiple Listing Service, Inc. (“Heartland MLS”). Copyright 2026, Heartland Multiple Listing Service, Inc. Heartland MLS, Elite Realty and Agent Jo do not make any warranty or representation concerning the timeliness or accuracy of the information displayed herein. In consideration for the receipt of the information on this page, the recipient agrees to use the information solely for the private non-commercial purpose of identifying a property in which the recipient has a good faith interest in acquiring.
The data relating to real estate displayed on this website comes in part from the Heartland Multiple Listing Service database compilation. The properties displayed on this website may not be all of the properties in the Heartland MLS database compilation, or all of the properties listed with other brokers participating in the Heartland MLS IDX program. Detailed information about the properties displayed on this website includes the name of the listing company.
Information is deemed reliable but is not guaranteed.

Copyright © 2026 ELITE Realty.