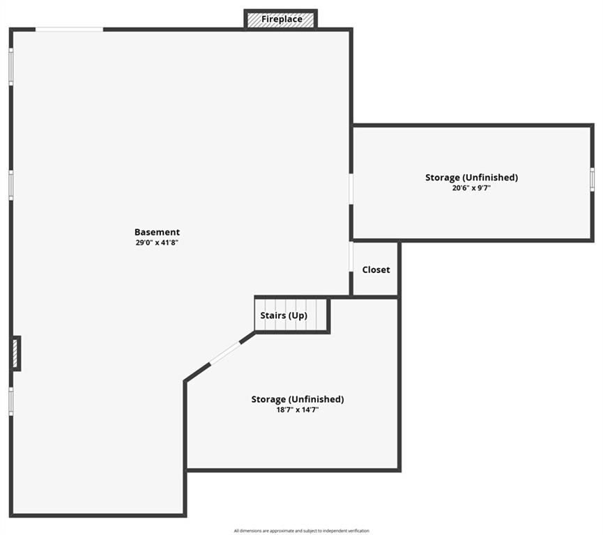
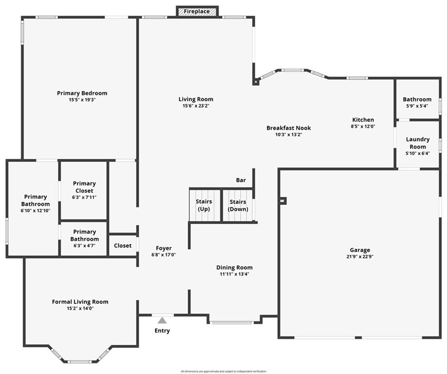
Welcome to 8003 Mullen Road—This Huge 1.5-story home is located in the heart of Lenexa and has lots of room to roam. Boasting 4 spacious bedrooms, 3.5 baths, a bonus loft area, and a spacious 2-car garage. Step inside to discover fresh interior paint and brand-new carpet, creating a clean, inviting foundation. The main level features the primary bedroom, formal living, and dining rooms, breakfast room, and an oversized great room with vaulted ceilings, a brick fireplace, and a wet bar—perfect for both everyday living and entertaining guests. All appliances remain, including the washer & dryer. Upstairs, the generously sized bedrooms provide plenty of space for everyone, while the walk-out basement is ready to become whatever you imagine—a home gym, media room, or additional living space. Outside, the fenced backyard is ready for play, relaxation, or weekend gatherings. And don't miss the new roof, bringing peace of mind. HOA amenities include a community pool for those hot summer days. Truly a great house in a very desirable neighborhood.
Copyright © 2026 ELITE Realty.