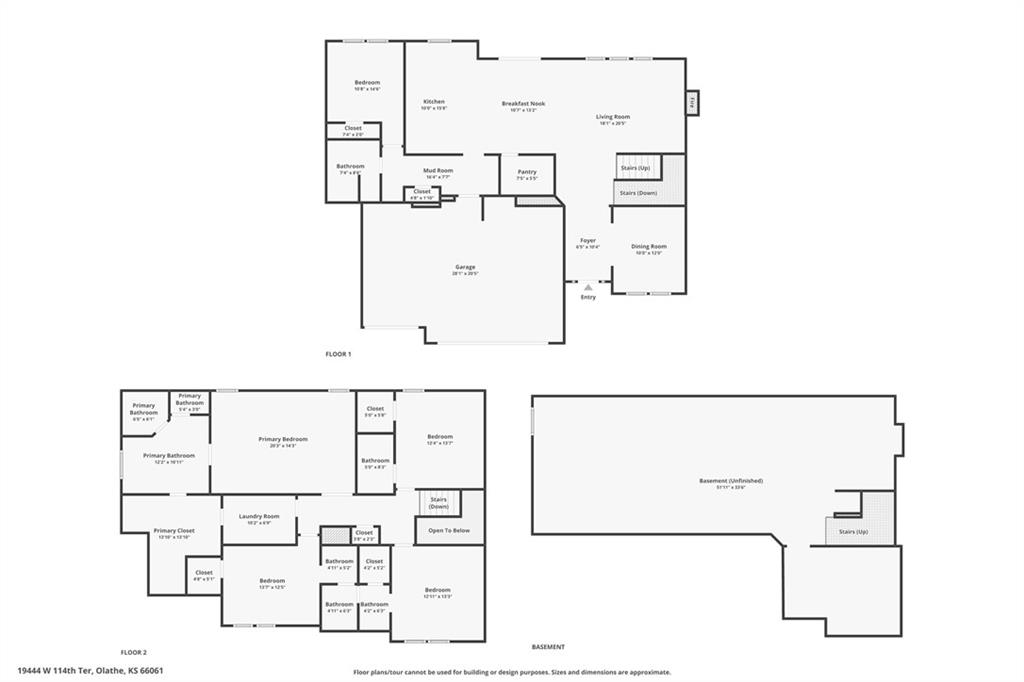
Sydney III plan features an open floor plan where function meets design. Walk in to nice flex space for office, play room or dining room. Open floor plan with large kitchen island and walk in pantry. Boot bench and charging station are so handy when entering from garage. Flex bedroom on main floor with full bathroom. Upstairs features huge master bedroom with his/her vanities and tub to relax in. Large walk in shower with dual shower heads. Convenient laundry room off master closet. 3 other generous sized secondary bedrooms upstairs. Free standing tub in primary bathroom offers a spa life feel with walk in shower, granite countertops and natural lighting. Walk in closet that feeds directly into laundry room.
Copyright © 2026 ELITE Realty.