2105 W 50th Terrace, Mission Woods, KS 66205

     
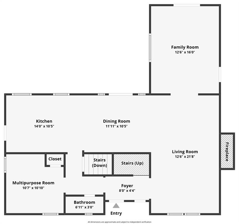
  • 3Beds
  •   
  • 2 Baths
  •  
  • 1½ Bath
  •  
  • 2,178Sq Ft
Mortgage Calculator

$700,000
 est. $3,322/mo

Welcome to this beautiful 1.5-story colonial tucked within the highly sought-after Mission Woods community. With a recently remodeled kitchen and updated primary bathroom, plus a 5-year-old roof, this home blends classic charm with modern updates that you'll love. Step outside to your own backyard oasis featuring a stunning gunite pool surrounded by mature landscaping. In spring, the banana trees burst into bloom, and by summer they create a natural canopy of shade and privacy—perfect for relaxing, entertaining, or unwinding after a long day. The location is truly unbeatable. Just 5 minutes from KU Medical Center, the Country Club Plaza, Mission Hills Country Club, and Loose Park, you’re surrounded by some of KC’s best amenities. And with quick highway access, commuting anywhere in the metro is effortless. Timeless curb appeal, standout updates, and an outdoor retreat that feels like a private getaway—this Mission Woods gem offers the lifestyle you’ve been waiting for.

Directions
Head north on Rainbow Blvd/169 from Shawnee Mission Pkwy. Then turn right on W 50th Terr. Home is the 2nd to the last house on the right.
Subdivision
Mission Woods
City
Mission Woods
County
Johnson, KS
Property Type
Residential / Single Family Residence
Listing Updated
Nov 28, 2025 at 1:11am
MLS Number
2589037
Property Tax
$8,323
Home Owners Association
Yes - Mission Woods Home Association
Disclaimer
The information displayed on this page is confidential, proprietary, and copyrighted information of Heartland Multiple Listing Service, Inc. (“Heartland MLS”). Copyright 2025, Heartland Multiple Listing Service, Inc. Heartland MLS, Elite Realty and Agent Jo do not make any warranty or representation concerning the timeliness or accuracy of the information displayed herein. In consideration for the receipt of the information on this page, the recipient agrees to use the information solely for the private non-commercial purpose of identifying a property in which the recipient has a good faith interest in acquiring.
The data relating to real estate displayed on this website comes in part from the Heartland Multiple Listing Service database compilation. The properties displayed on this website may not be all of the properties in the Heartland MLS database compilation, or all of the properties listed with other brokers participating in the Heartland MLS IDX program. Detailed information about the properties displayed on this website includes the name of the listing company.
Information is deemed reliable but is not guaranteed.

Copyright © 2025 ELITE Realty.