1706 253rd Street, Hiawatha, KS 66434

     
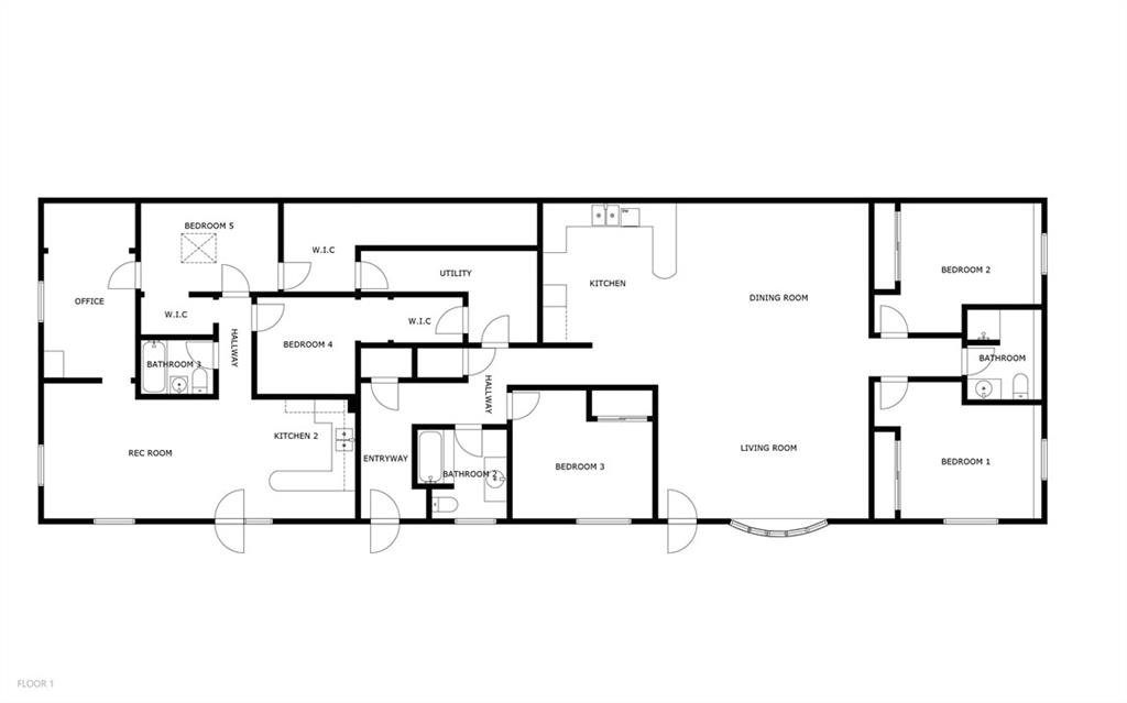
  • 4Beds
  •   
  • 2 Baths
  •  
  • 1½ Bath
  •  
  • 3,018Sq Ft
Mortgage Calculator

$157,000
 est. $756/mo

Spacious 4-bedroom Earth Contact home on 4 quiet rural acres. Features include an additional kitchen, large recreation room, and an efficient, naturally climate-controlled design. Peaceful setting with plenty of outdoor space and flexible layout ideal for multigenerational living or entertaining. A unique property offering privacy, comfort, and versatility.

Directions
TAKE 36 HWY WEST TOWARDS HIAWATHA, KS. TAKE THE RACOON ROAD EXIT. TURN RIGHT ON 253RD RD. PROPERTY IS ON THE RIGHT
Subdivision
Other
City
Hiawatha
County
Brown
Property Type
Residential / Single Family Residence
Listing Updated
Nov 22, 2025 at 9:11pm
MLS Number
2588672
Property Tax
$1,988
Home Owners Association
No
Disclaimer
The information displayed on this page is confidential, proprietary, and copyrighted information of Heartland Multiple Listing Service, Inc. (“Heartland MLS”). Copyright 2025, Heartland Multiple Listing Service, Inc. Heartland MLS, Elite Realty and Agent Jo do not make any warranty or representation concerning the timeliness or accuracy of the information displayed herein. In consideration for the receipt of the information on this page, the recipient agrees to use the information solely for the private non-commercial purpose of identifying a property in which the recipient has a good faith interest in acquiring.
The data relating to real estate displayed on this website comes in part from the Heartland Multiple Listing Service database compilation. The properties displayed on this website may not be all of the properties in the Heartland MLS database compilation, or all of the properties listed with other brokers participating in the Heartland MLS IDX program. Detailed information about the properties displayed on this website includes the name of the listing company.
Information is deemed reliable but is not guaranteed.

Copyright © 2025 ELITE Realty.