4033 WARWICK Boulevard, Kansas City, MO 64111

     
  • 5Beds
  •   
  • 3 Baths
  •  
  • 1½ Bath
  •  
  • 3,252Sq Ft
Mortgage Calculator

$700,000
 est. $3,279/mo

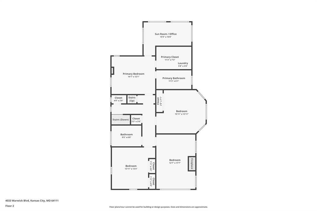
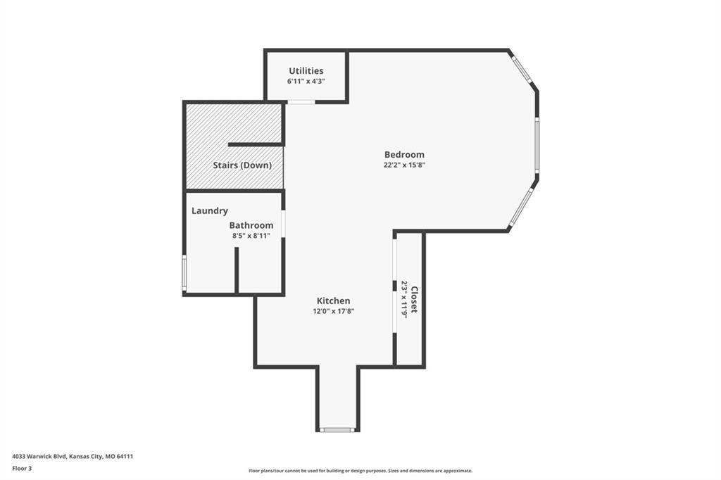
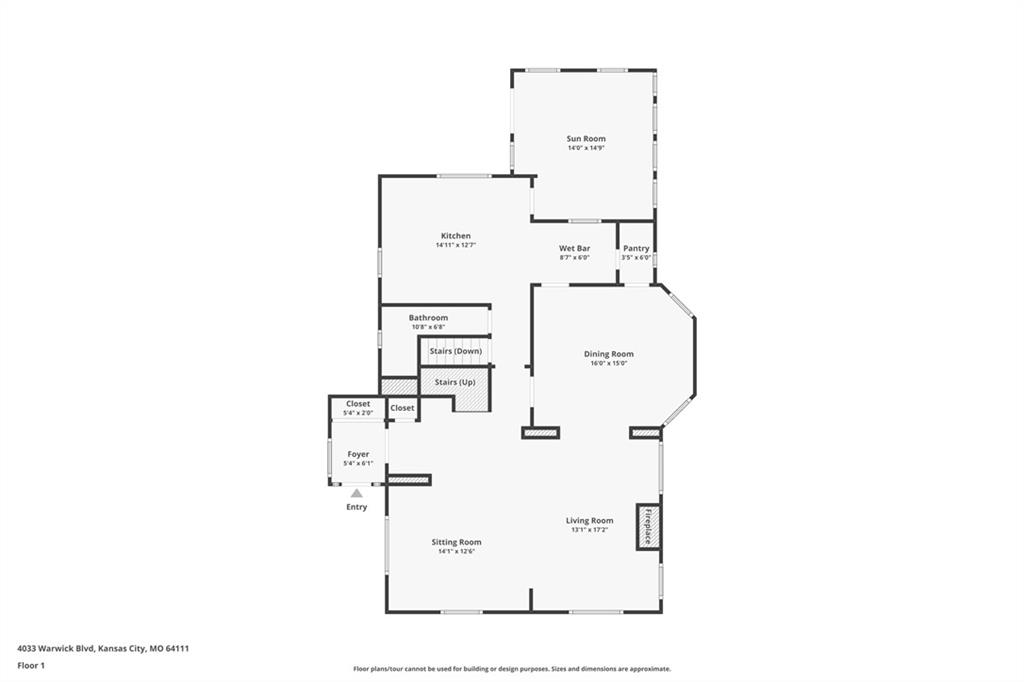
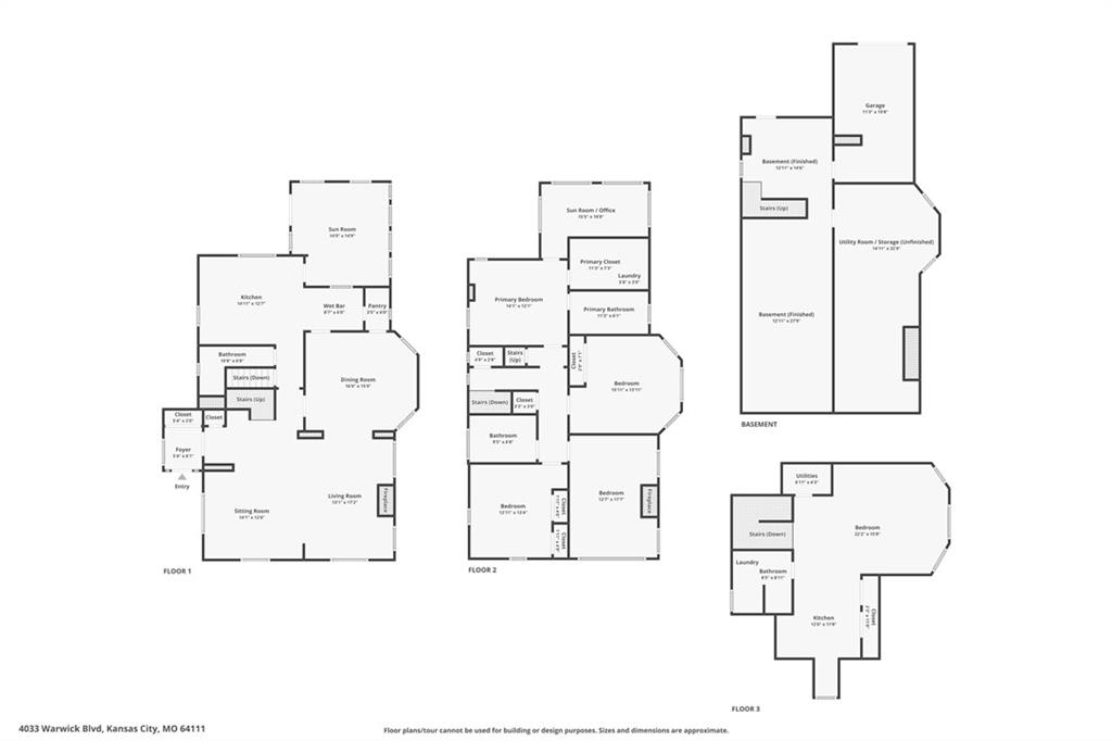
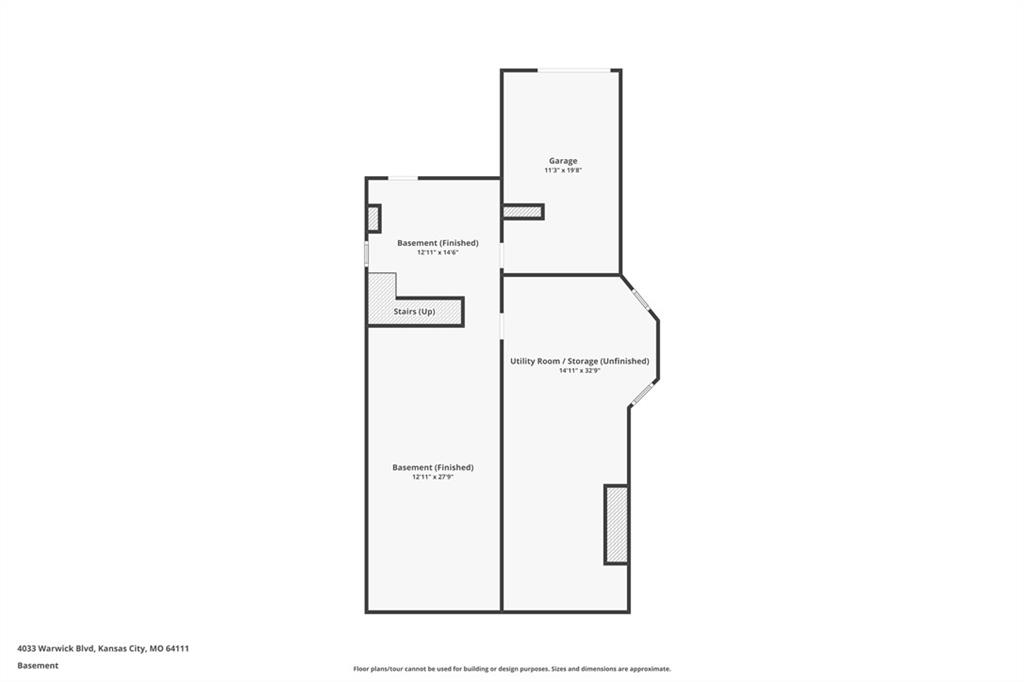
The one! Here is your chance for luxury, comfort, space, and charm all rolled into one ROCK SOLID property in the heart of KC. Own a slice of Kansas City's history which happens to be walkable to Plaza, Westport, the Art Institute, the Nelson Adkins Museum, Streetcar, Midtown Market, and so much more. This home has a healthy mix of traditional and modern luxuries such as original woodwork + working radiators juxtaposed by new kitchens + baths with updated plumbing and heated floors. Seamless living for the whole family. The butler's staircase was converted to the 'yellow submarine' half bath off the kitchen and a large storage closet on the landing. The kitchen boasts concrete counter tops, a double farm sink, a second drink bar with a copper countertop, 2nd sink, ice maker, and a mini fridge. The walk-in pantry connects the kitchen to the dining room or you can use the original double swinging door. Enjoy new and original windows throughout since the beautiful leaded windows have been expertly sealed with storms to preserve them. OH WAIT, there is more! Don't miss the large all season's room, grilling deck, covered carport, basement speakeasy, second floor sunroom/office, original clawfoot tub, walk-in closets, new stair/hall carpet AND the BONUS 3rd floor studio apartment (added income potential)! The home has been SO lovingly maintained and upgraded (ask about the efficient HVAC setup) that you will not want to leave. The front yard has the ultimate wrap around front porch overlooking the stunning magnolia tree that blooms with pink and white flowers twice per year. The basketball goal, professional landscaping, and private driveway (up to 9 cars) are also sure to please. This big blue home is the perfect place to host an elegant event or hunker down to raise your babies with ultimate versatility. It is a sound structure that was built to last another hundred years. Don't miss out! Tour today and experience this delightful home with a location that can't be beat!

Directions
From the KS Side: I-35 towards downtown, exit Mission Rd. Turn left on 43rd Ave and go through Westport to Warwick Blvd. Turn left and the Big Blue home is on your right. From Brookside/Waldo/Plaza: Go North on Main until E 41st (Starbucks) and turn right. Go one block, Turn left on Warwick and home is on the right. From 71HWY: Exit 39th Street and go West to Warwick and turn left. Four blocks and the home is on your left.
Subdivision
Union Park
City
Kansas City
County
Jackson
Property Type
Residential / Single Family Residence
Listing Updated
Nov 27, 2025 at 8:11pm
MLS Number
2586988
Property Tax
$7,804
Home Owners Association
No
Disclaimer
The information displayed on this page is confidential, proprietary, and copyrighted information of Heartland Multiple Listing Service, Inc. (“Heartland MLS”). Copyright 2025, Heartland Multiple Listing Service, Inc. Heartland MLS, Elite Realty and Agent Jo do not make any warranty or representation concerning the timeliness or accuracy of the information displayed herein. In consideration for the receipt of the information on this page, the recipient agrees to use the information solely for the private non-commercial purpose of identifying a property in which the recipient has a good faith interest in acquiring.
The data relating to real estate displayed on this website comes in part from the Heartland Multiple Listing Service database compilation. The properties displayed on this website may not be all of the properties in the Heartland MLS database compilation, or all of the properties listed with other brokers participating in the Heartland MLS IDX program. Detailed information about the properties displayed on this website includes the name of the listing company.
Information is deemed reliable but is not guaranteed.

Copyright © 2025 ELITE Realty.